Инерционный грохот ГИС-63 производительностью до 220 м3/час
Вашему вниманию представлен надежный и производительный инерционный грохот модели ГИС-63. ООО «Миасский конвейерный завод №1» ‒ разработчик и производитель дробильно-сортировочного оборудования. Мы работаем с 2010 года, преимущества сотрудничества с нами:
- надежный проверенный производитель;
- современное качественное оборудование;
- свой конструкторский отдел;
- свой склад запчастей;
- услуги шефмонтажа;
- честные заводские цены.
Грохот ГИС-63 ‒ основные особенности и достоинства
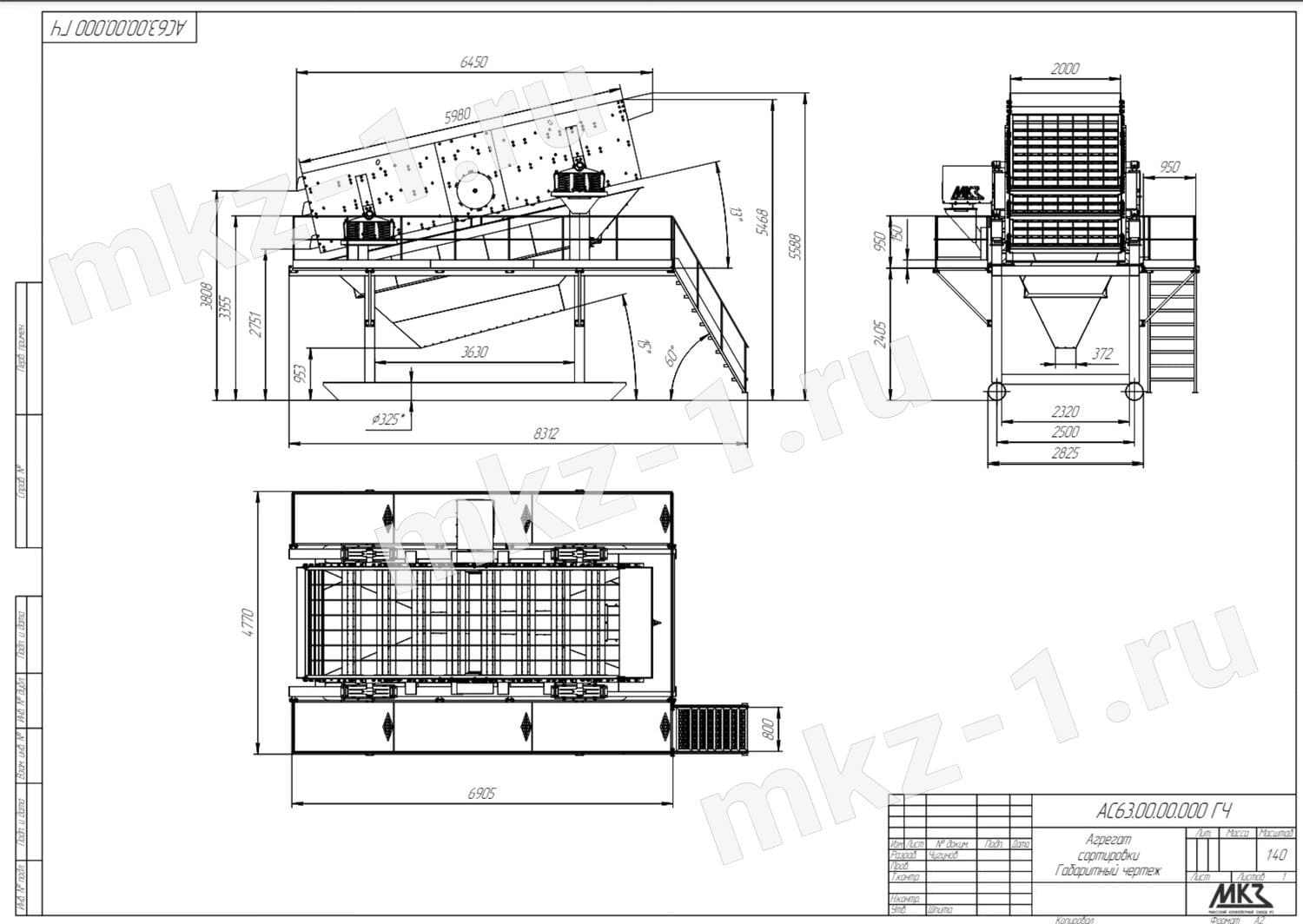
При производстве щебня раздробленную в дробилках горную породу необходимо разделять на фракции. Эту задачу и выполняет предлагаемое оборудование. Грохот имеет три яруса, что позволяет разделять исходный материал за один цикл на три товарные фракции. Размер фракций зависит от используемых сит. Например, это могут быть фракции 0-5 мм, 5-20 мм и 20-40 мм.
Схема работы:
- исходный материал подается в бункер;
- колебания от электродвигателя передаются на трехъярусный короб с ситами;
- дробленый материал просыпается через систему сит, разделяясь на фракции;
- оставшаяся крупная фракция отправляется на повторное дробление.
В конструкции грохота используются качественные материалы и комплектующие. Предлагаемое оборудование успешно работает на ряде российских предприятий и на практике доказало свою надежность, экономичность и высокую производительность.
По желанию заказчика грохот может быть дооснащен разгрузочным бункером для подрешетного материала, ситами, системой крепления сит «под натяжку», разгрузочными лотками, площадками обслуживания, лестницами и перилами.
ООО «МКЗ №1» осуществляет поставки в любой город России и Казахстана. Для оформления заказа на ГИС-63 в Алматы воспользуйтесь функционалом сайта, отправьте заявку на электронную почту info@mkz-1.ru или позвоните по телефонам:
- 8 (800) 302-07-04;
- +7 (3513) 26-46-02.
| Производительность (м3/ч) | 165-220 |
| Мощность электродвигателя (кВт) | 22 |
| Размер просеивающей поверхности (мм, ШД) | 2000х6000 |
| Площадь просеивающей поверхности (м2) | 12 |
| Число ярусов | 3 |
| Наибольший размер куска исходного материала (мм) | 200 |
| Вес максимальный объемно-насыпной массы просеивающего материала (т/м3) | 1,8 |
| Масса грохота (без привода) (кг) | 8200 |
| Угол наклона просеивающей поверхности (град.) | 10-25 |
Погрузка дробильно-сортировочного оборудования осуществляется силами производителя. Доставка и разгрузка выполняются силами Покупателя.
Большая часть оборудования нашего производства соответствует транспортным габаритам, разрешённым для перевозки по территории РФ и РК. В 95% случаев достаточно обычных крытых еврофур длиной кузова 13 м и грузоподъёмностью до 20 тонн.
Мы отправляем продукцию по всей России и Республике Казахстан. В Алматинской области доставка возможна в Алматы, Талдыкорган, Капчагай, Иссык, Талгар, Каскелен и другие города.
Для оборудования массой более 20 тонн применяется открытая перевозка на автомобильной платформе (трале). Например, щековая дробилка ДРО-750 транспортируется со снятой подвижной щекой и имеет общий вес около 40 тонн.
Ленточные конвейеры перевозятся в разобранном виде: ролики и роликоопоры упаковываются в штабели, приводные и натяжные станции, конвейерные рамы и лента занимают отдельные места.

